A “novela” envolvendo o destino da Cabana do Pescador — imóvel histórico no Peró, em Cabo Frio — pode chegar a um final feliz nesta quinta-feira (26). A Justiça Federal realiza nesta tarde, a partir das 15h, mais uma audiência para discutir o futuro do ponto turístico.
Na sessão, será analisado um novo projeto que prevê a transformação da Cabana em um Centro de Memória dedicado à cultura da pesca artesanal na região.
A nova proposta já tem parecer favorável do Ministério Público Federal (MPF), da Secretaria de Turismo de Cabo Frio e de entidades representativas da comunidade do Peró, onde fica o imóvel. A expectativa é de que a reunião desta quarta, na 1ª Vara Federal de São Pedro da Aldeia, termine com a definição de detalhes sobre como acontecerá a instalação do Centro de Memória no local, que foi isolado no final do ano passado por conta de más condições e danos estruturais.
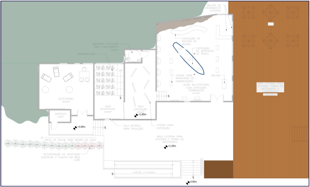
Cabana vai abrigar exposições e oficinas de saberes ligados à cultura pesqueira
Assinado pela arquiteta Paula Barreto, da Coordenadoria de Urbanismo da prefeitura, o projeto prevê a criação de uma área para exposições e atividades culturais na Cabana, com painéis informativos e artefatos históricos ligados à cultura pesqueira de Cabo Frio.
Além disso, a proposta sugere usar o espaço para realizar oficinas de saberes tradicionais, que farão parte do circuito fixo de exposições do Centro. “Quando concretizado, o espaço será uma referência na valorização da cultura marítima em Cabo Frio, fortalecendo a conexão entre a cidade e suas raízes pesqueiras”, disse a arquiteta responsável.

Prefeitura de Cabo Frio pretende indenizar herdeiros do último morador da Cabana
A audiência desta quarta vai contar com a presença de representantes do órgão federal, da prefeitura e dos herdeiros de Jamil dos Anjos, último morador do imóvel, falecido em agosto de 2014, aos 73 anos. Durante a sessão, o município vai apresentar uma proposta de indenização aos três herdeiros.
Integrantes dos Amigos do Peró e da Associação Comercial e Turística do Peró (Acetur), que acompanham as discussões em torno dos destinos da Cabana, também participam.
Projeto anterior foi vetado pelo MPF
A nova versão substitui um projeto anterior, vetado pelo MPF no ano passado. A proposta anterior foi barrada por sugerir usar parte do espaço do imóvel para instalar banheiros em estabelecimentos de alimentação.
Por estar localizada na área do Parque Estadual da Costa do Sol (PECS), unidade de proteção integral, a Cabana não pode abrigar atividades comerciais. Além disso, um laudo técnico anexado ao processo, assinado pelo gestor ambiental Glauco Castro da Silva, atesta que o local não comporta descarte de efluentes, o que impede a instalação de banheiros.
A proposta que será discutida nesta quarta prevê que o espaço, além de um centro de valorização cultural, volte a funcionar como um núcleo de informação turística para a região, uma das mais visitadas de Cabo Frio. Segundo o secretário de Turismo da cidade, Dvi Barcelos, a reforma da Cabana deve inaugurar um “um novo momento” turístico para a região.

Os moradores da região também aprovaram o projeto, segundo Marta Rocha, integrante do grupo Amigos do Peró. “A proposta é muito boa. Será um ponto turístico extremamente importante, não só para o Peró, como para toda região”, disse Marta.
Construída no século vinte, a Cabana do Pescador servia de abrigo para os pescadores da região e, com o passar dos anos, se tornou destino turístico na Praia do Peró. Foi usada como local de gravação para vários filmes e novelas, incluindo “Avenida Brasil”, da Rede Globo. Por conta do uso na atração, ficou conhecida informalmente como casa do “Tufão”, personagem da atração televisiva.
O espaço é considerado patrimônio histórico, cultural e arquitetônico do município de Cabo Frio e do estado do Rio.

